Departamento en venta en Paternal

  • USD 85.000
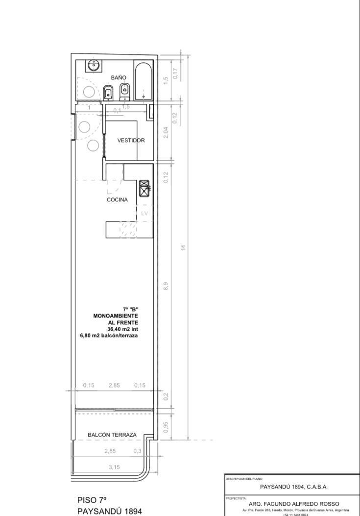
Paysandu 1898, Paternal, Capital Federal

Descripción

Se vende la ultima unidad disponible en este excelente edificio a estrenar.

Se trata de un Monoambiente XL , al frente en un 7mo piso, con orientación este.

El monoambiente cuenta con vestidor.

Ubicado en una zona con acceso a colegios, bancos, comercios y esoacios verdes.

Ideal primera vivienda, inversor.

Entrega Marzo 2026.

Contactate con nosotros para agendar tu visita.

Aviso legal:
Las descripciones, medidas, valores y fotografías son orientativos y pueden diferir de la documentación oficial (título, boleto, planos y registros).
Los precios y fechas de obra o posesión son estimativos y podrán modificarse sin previo aviso.
Operación intermediada exclusivamente por Ignacio Rafael Pierucci, Corredor Inmobiliario CUCICBA Nº 9230 – Buelo Real Estate & Marketing.

Detalles

ID
BUE-184807
Dormitorio
1
Ambiente
1
Baño
1
Sup. cubierta
37.00 m²
Sup. descubierta
0.00 m²
Sup. semicubierta
6.00 m²
Sup. total
43.00 m²
Antigüedad
Estrenar
Orientación
Este
Disposición
Frente
Actualizado en octubre 30, 2025 a 10:10 am

Dirección

  • Dirección Paysandu 1898
  • Ciudad Capital Federal
  • Provincia Capital Federal
  • Localidad o barrio Paternal

Información de contacto

Sebastian Fente
  • Javier Zalazar
  • +5491165082555

Quiero saber más sobre esta propiedad

Propiedades similares

Comparar listados

Comparar
Abrir chat